free simple site templates



The Modern Michael
   

Design

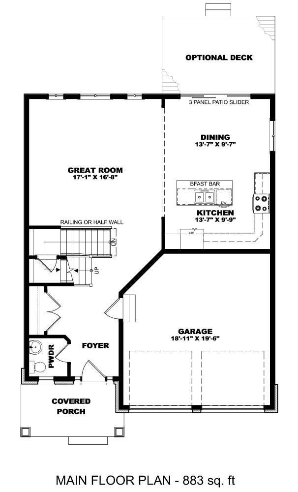
Modern sleek looking Two story home with extraordinary features including 4 bedrooms, luxury ensuite bath, large beautiful kitchen with sink in island and lots of cabinets, dining room with large 9 foot glass slider to backyard. Unique home ahead of the times.

  •  Unit type: Two Story
  • Area: 2170 square feet
  • Bedrooms: 4 
  • Bathrooms: 3.5
Skillfully designed by Metro Homes

Our Standards List

Exterior

  • 1) Poured concrete foundation walls with protective drainage layer connected to weeping tile system and sump pump
  • 2) Steel sectional roll-up type insulated garage door
  • 3) Garage man door to exterior
  • 4) Garage man door to interior as per plan
  • 5) Fully sodded lots including boulevard
  • 6) Clay brick veneer and vinyl siding as per front elevation plan
  • 7) Pre-cast stone window sills
  • 8) Decorative keystones and detailed bricklaying as per plan
  • 9) Weather stripping to be installed on all exterior doors and all windows to be fully caulked
  • 10) Driveways to be graded with granular A stone 8”
  • 11) Walkway from driveway to front entrance
  • 12) Maintenance free aluminum soffits, fascia, ease troughs and downspouts plus
  • protective aluminum drip edge protection at eaves
  • 13) 2” by 6” exterior walls
  • 14) Two G.F.I.C protected exterior electrical outlets (one in front and rear of home)
  • 15) Two convenient outdoor hose bibs for front and back of home
  • 16) Lifetime self-sealing asphalt shingles
  • 17) Decorative steel insulated or fiberglass front entry doors with grip set deadbolt lock
  • 18) Glass sidelights as per plan
Interior

1) 5 inch modern baseboards with 3 inch modern casing throughout
2) Square defined corners
3) Air conditioning
4) Polished chrome, brushed nickel or antique bronze finished hardware on all
interior doors
5) 4 different Interior door selections to choose from which will be painted with latex paint
6) Nine foot ceiling height on main floor or Cathedral
7) Oak staircase, railings, posts and spindles included on main floor (pine stairs and
railing to basement)

Interior
Flooring
Flooring

1) Tile in foyer, main floor laundry, all bathrooms and dining room (large selection to choose from)
2) Hardwood in great room
3) Premium carpet in bedrooms, 40 oz. 1⁄2 chip foam under pad
4) All sub floors glued, nailed and screw down

Kitchen

1) Choice of deluxe kitchen cabinets in a range of colors and styles. 5 foot island or peninsula included
2) Arborite counter tops with return splash
3) 4 pot lights included in all kitchens
4) Dishwasher rough in with space in cabinet for future dishwasher
5) Heavy duty 220 volt receptacle for electric range and dedicated receptacle for
refrigerator
6) Kitchen exhaust fan or microwave exhaust fan ducted to the exterior
7) Double stainless steel sink and single levered washerless Moen faucet

Kitchen
Bathrooms
Bathrooms

1) choice of deluxe bathroom cabinets and durable arborite countertops in a range of colours and styles
2) Moen single lever washerless faucets provided in all bathrooms
3) White plumbing fixtures from vendor samples
4) Exhaust fans in all bathrooms vented to exterior
5) Acrylic 1pc. Tub/shower units or 48” in-wall acrylic showers with seat as per plan with
pressure balancing valves
6) Insulated toilet tanks
7) Electrical outlets beside vanity in all bathrooms
8) Towel bar, toilet tissue dispenser privacy locks on all bathroom doors
9) Mirrors above all bathroom vanities

Laundry

1) Heavy duty receptacle for electrical clothes dryer
2) Laundry tub and washing machine supply taps provided

Laundry
light
Electrical

1) Circuit breaker electrical panel(200amp)
2) Copper wiring throughout
3) Electrical outlets for future garage door opener
4) Heavy duty receptacle for electric range and dryer
5) Rough in for central vacuum to basement
6) Smoke detectors & co2 with strobe lights
7) Electric door chime
8) Phone /cable in all bedrooms, living room and phone in kitchen
9) Lighting fixture package

Insulation

1) Walls insulated with R22 above grade and R12 below grade with hrv and ceiling insulated to R60
2) Maintenance free all-vinyl double glazed windows low e argon filled with energy star rating

Insulation
Walls
Drywall & Painting

1) Walls finished with drywall using screws, taped and sanded ready for paint
2) one colour for trim
3) Interior walls to be painted with quality paint. Purchasers choice of colors from
vendor samples(max 3 colours)
4) Garage drywalled and painted one coat
5) Flat painted ceilings throughout the house

HVAC

1) 96% high efficient gas fired forced air heating(keeprite)
2) Modern efficient hot water tank on rental bases
3) HRV
4) Air Conditioning unit

HVAC

Contacts

About

We stand by our customers and support our trades every step of the way. Everything we do is integrity-driven. 

Follow Us
Contact
  • Address: Garner Rd & McLeod Rd, Niagara Falls, ON L2H 2Y6
  • Phone: (289) 241 4945
  • Email: 
  • Email
  • info@metrohomesbuildinggroup.ca

Copyright (c) 2024 Metro Homes Building Group. All rights reserved. Powered Cinemote Media